REQUEST A TOUR If you would like to see this home without being there in person, select the "Virtual Tour" option and your agent will contact you to discuss available opportunities.
In-PersonVirtual Tour

$ 295,000
Est. payment | /mo
$ 295,000
Est. payment | /mo
Key Details
Property Type Vacant Land
Listing Status Pending
Purchase Type For Sale
MLS Listing ID IV24211767
HOA Y/N No
Property Description
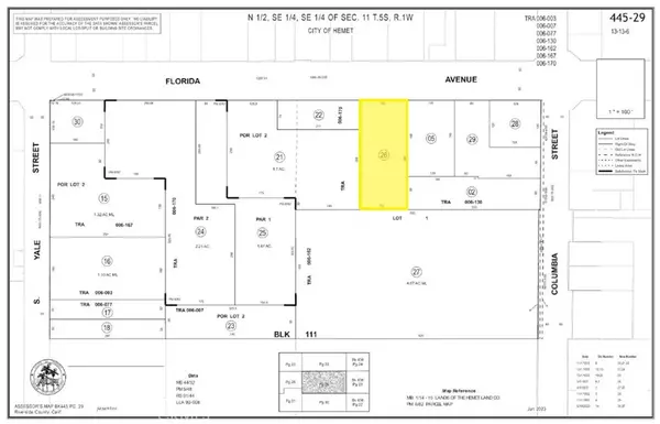
The offering consists of one legal parcel totaling approximately 0.88 acres of land located along Florida Avenue/Highway 74 within the City of Hemet. The property has +/- 120 feet of frontage on Florida Avenue in which curb and sidewalk have already been installed. There are existing improvements on about two-thirds of the property that was previously utilized as a parking lot including pavement, three light poles, and a small stone wall on the frontage portion. The southern one-third of the property has not been improved and sits as raw land. On the west side of the property is an existing shopping center including an office building owned by the Southwest Riverside County Association of Realtors which is directly adjacent. On the east side of the
property is an office building occupied by Century 21 as well as a car wash. Directly across Florida Avenue is the KPC Medical Center and behind the
property to the south is a Lutheran Church. All utilities available nearby for connection (buyer to verify).
property is an office building occupied by Century 21 as well as a car wash. Directly across Florida Avenue is the KPC Medical Center and behind the
property to the south is a Lutheran Church. All utilities available nearby for connection (buyer to verify).
Location
State CA
County Riverside
Area Srcar - Southwest Riverside County
Zoning C-2
Interior
Fireplace No
Exterior
Community Features Valley
View Y/N Yes
View Mountain(s)
Building
Lot Description Value In Land
Water Public
New Construction No
Others
Senior Community No
Tax ID 445290026
Acceptable Financing Cash, 1031 Exchange
Listing Terms Cash, 1031 Exchange
Special Listing Condition Standard

Listed by ERIC WASHLE COLDWELL BANKER COMMERCIAL SC 714-323-3862
GET MORE INFORMATION

Bill Hayward
Partner | Lic# DRE# 01722898




